Palazzina in vendita

Napoli, Via Plinio - Bagnoli Alta
€ 305.000
6 locali 6 locali
160 Mq 160 Mq
2 bagni 2 bagni

Palazzina in vendita

Napoli, Via Plinio - Bagnoli Alta

Descrizione annuncio

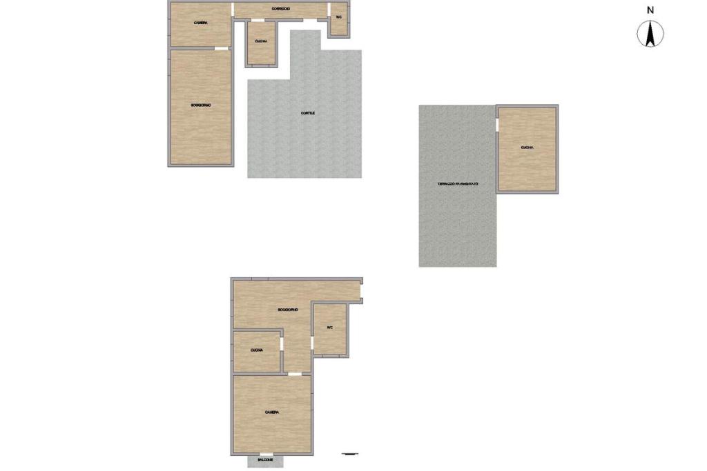
Via Plinio. Intera palazzina terra cielo disposta su tre livelli.

Nel cuore di Bagnoli proponiamo in vendita un’interessante soluzione indipendente terra cielo, disposta su tre livelli per una superficie complessiva di circa 160 mq commerciali, ideale sia per uso abitativo che come investimento.
La proprietà si presenta con ingresso indipendente attraverso un cortile privato, spazio versatile che offre la possibilità di parcheggiare comodamente due auto o moto, un valore aggiunto raro per le soluzioni situate in zona centrale.
Piano terra:
L’ingresso introduce in un comodo corridoio che conduce agli ambienti principali. Troviamo un ampio soggiorno luminoso con punto luce, una camera da letto con finestra, un bagno finestrato e una cucina abitabile.
Primo piano:
Salendo al livello superiore si accede ad un disimpegno centrale che distribuisce gli ambienti. Il piano ospita un soggiorno con doppia esposizione, particolarmente luminoso, una camera da letto anch’essa con doppia esposizione con balcone con affaccio su Via Plinio, una cucina abitabile ed un bagno finestrato.
Secondo e ultimo piano:
A completare la proprietà troviamo una ulteriore camera adibita a cucina abitabile con accesso diretto ad un ampio terrazzo pavimentato, spazio ideale per momenti di relax all’aperto, pranzi e cene durante la bella stagione.

VISIONABILE TUTTI I GIORNI PREVIO AVVISO TELEFONICO.

TECNORETE BAGNOLI 0817621024 ( ANCHE CONTATTI WhatsApp) Per chi volesse acquistare attraverso l'ottenimento del mutuo, presso la nostra agenzia si puo richiedere una consulenza gratuita, ai nostri professionisti della KIRON (societa di mediazione creditizia del gruppo) i quali, offrono servizi e prodotti su misura per ogni tipo di necessita finanziaria con un'ampia gamma di prodotti creditizi e assicurativi come: - Mutui prima, seconda casa e ristrutturazione; - Sostituzione o Surroga del Mutuo; - Prestiti Personali; - Cessioni del Quinto dello Stipendio o Pensione; - Consolidamento Debiti; - Prodotti Assicurativi per la Famiglia, ramo Danni e Vita. Ogni agenzia ha un proprio titolare ed e autonoma - Le presenti informazioni non costituiscono elemento contrattuale.

Mostra tutto

Nelle vicinanze

Trasporto pubblico Trasporto pubblico
Mostra
Mostra
2,4 Km
Augusto
Augusto
2,9 Km
Bagnoli-Agnano Terme
Bagnoli-Agnano Terme
180 m
Bagnoli
Bagnoli
320 m
Silla
Silla
110 m
Scuole Scuole
Istituto Scolastico Corsaro
60 m
Liceo Scientifico A.Labriola
300 m
IC 73 "Ilioneo"
320 m
Scuole
330 m
73° CD Madonna Assunta
360 m
Farmacia Farmacia
Farmacia
440 m
Farmacia Cantone
1,8 Km
Farmacia Marechiaro
2,8 Km
Farmacia San Paolo
2,9 Km
Parafarmacia Conad
2,9 Km
Ospedali Ospedali
Ospedale San Paolo
1,7 Km
ASL NA 1 - Poliambulatorio
2,2 Km
Clinic Center
2,7 Km
Ospedale Fatebenefratelli
2,8 Km
Supermercati Supermercati
Sigma
170 m
Carrefour Market
700 m
Conad
850 m
MD
1,2 Km
Sole 365
1,7 Km
Negozi Negozi
La Pietra
620 m
Bonito Napoli
1,6 Km
Emporio
1,8 Km
Nikita
1,8 Km
Negozi
1,8 Km
Bar Bar
Madalu
410 m
Bar
430 m
Bar di Lauro
480 m
Vintage
630 m
Brusco Wine & Audio Room
920 m
Ristoranti Ristoranti
Vineria
410 m
La Pietra
610 m
Misterpizz
630 m
Vulkania
750 m
Fralegiò
760 m
Mostra tutto

Caratteristiche

Rif.:
61188974
Piano:
1 di 1 (Piano su più livelli)
Posti auto:
2
Balconi:
1
Terrazzi:
1
Camere da letto:
4
Mostra tutto
Prezzo Prezzo
€ 305.000
Rata mutuo Rata mutuo
€ 1.448 / mese
Spese annue Spese annue
€ 1
Proponi il tuo prezzoProponi il tuo prezzo

Classe Energetica

G
G
G
G
G
G
G
G
G
EP globale non rinnovabile:
175.00 kW h/m² anno
EP globale rinnovabile:
175.00 kW h/m² anno
EP invernale del fabbricato:
EP estiva del fabbricato:
Anno di costruzione:
1960
Riscaldamento:
Autonomo
Tipo impianto:
A radiatori
Tipo alimentazione:
Metano

Ti interessa visionare l'immobile?

Fissa un appuntamento  Fissa un appuntamento

Richiedi informazioni

Clicca su Leggi per aprire l'informativa
* Questi campi sono obbligatori

Calcola il tuo mutuo

Semplice e senza impegno
Anticipo

( % )
Mutuo

( % )

pochi semplici passi

inserisci i tuoi dati
Questionario completato
Grazie per aver richiesto un appuntamento senza impegno con un nostro Consulente del Credito e Assicurativo.

Hai inserito correttamente tutti i dati necessari e a breve riceverai una e-mail con un link da convalidare per inviare i tuoi dati.
Affiliato
Galassia Case Srl
Viale Campi Flegrei, 27/A 80124 Napoli (NA)

Il nostro staff


  • Veronica Cicatiello
    Collaboratrice

  • Lara Albano
    Coordinatrice

  • Lauro Amendola
    Collaboratore

  • Carmine Iandolo
    Responsabile

  • Massimo Nonno
    Collaboratore
Viale Campi Flegrei, 27/A 80124 Napoli (NA)
Zona: Bagnoli
Mostra su mappa
Orari: Dal Lunedì al Venerdi dalle 9:00 alle 20:00 e il sabato dalle ore 9:00 alle ore 18:00
Affiliato
Galassia Case Srl
Viale Campi Flegrei, 27/A 80124 Napoli (NA)

2026 Tecnocasa Franchising S.p.A. - P. IVA 08365160152 - Via Monte Bianco 60/A 20089 Rozzano (MI). Ogni agenzia ha un proprio titolare ed è autonoma. Privacy policy | Policy utilizzo | Cookie policy